PLANVARSEL
-
Varsel om oppstart av detaljregulering for Kjerkemyr. PlanID: 20251736
Spørsmål og kommentarer som kan ha betydning eller være av interesse for planarbeidet kan sendes skriftlig til: Grønn Prosjektutvikling AS, Strandgata 12, 4790 Lillesand. Eller: postmottak@gronnprosjekt.no merk meldingen: detaljregulering for Kjerkemyr.
Dersom planen vil ha innvirkning for eventuelle leietakere, ber vi deg informere disse.
Lillesand kommune skal stå på kopi på eventuelle innspill/merknader, v/ Lillesand kommune v/enhet for næring og byutvikling, postboks 115, 4795 Birkeland eller på e-post til postmottak@lillesand.kommune.no.
Fristen for å komme med innspill til planarbeidet er 20.03.2026.
Varslingsbrev
Planinitiativ
Referat fra oppstartsmøte 08.10.2025
Plangrense
-
Varsel om Kunngjøringer og høringer av detaljregulering for Høvåg sentrumsområde - felt FK2
Grønn Prosjektutvikling AS har på vegne av Høvågskauen AS utarbeidet forslag av detaljregulering for Høvåg sentrumområde - felt FK2.
Merknader/innspill til kunngjøring og høringer må besvares skriftlig innen fristen over epost: postmottak@gronnprosjekt.no, eller Grønn Prosjektutvikling AS, Vestegate 11, 4790 Lillesand.
Lillesand kommune skal stå på kopi på eventuelle innspill/merknader: Lillesand kommune v/enhet for miljø og byutvikling, postboks 155, 4795 Birkeland eller på epost:
postmottak@lillesand.kommune.no.Fristen for å komme med innspill/merknader er 01.04.2025

-
Varsel om oppstart av detaljregulering for Fløreneskilen småbåtanlegg. PlanID: 2024002732
Merknader til varslingen må besvares skriftlig innenfor fristen over Altinn plattformen, eller epost: postmottak@gronnprosjekt.no
Lillesand kommune skal stå på kopi på eventuelle innspill/merknader, v/ Lillesand kommune v/enhet for næring og byutvikling, postboks 115, 4795 Birkeland eller på e-post. postmottak@lillesand.kommune.no.
Fristen for å komme med innspill til planarbeidet er 19.01.2025

-
Varsel om oppstart av detaljregulering for N6 – Høvågveien, planID 2024000885
Merknader til varslingen må besvares skriftlig innenfor fristen over Altinn plattformen, eller e-post: postmottak@gronnprosjekt.no .
Lillesand kommune skal stå på kopi på eventuelle innspill/merknader, v/Lillesand kommune v/enhet for næring og byutvikling, postboks 115, 4795 Birkeland eller på e-post: postmottak@lillesand.kommune.no .
Firsten for å komme med innspill til planarbeidet er 10.11.2024

-
Varsel om oppstart av detaljregulering for Kleivsmyr boligområde, planID 2024002010
Merknader til varslingen må besvares skriftlig innenfor fristen over Altinn plattformen, eller epost: postmottak@gronnprosjekt.no .
Lillesand kommune skal stå på kopi på eventuelle innspill/merknader, v/ Lillesand kommune v/enhet for næring og byutvikling, postboks 115, 4795 Birkeland eller på e-post. postmottak@lillesand.kommune.no.
Fristen for å komme med innspill til planarbeidet er 10.11.2024.

NABOVARSEL
-
Nabovarsel - Ulvøysundveien 359, 4770 HØVÅG
Det omsøkte tiltaket omfatter etablering av en mindre steinbrygge samt oppføring av ny bod som erstatning for eksisterende bebyggelse på eiendommen gnr. 79 bnr. 25, Solhøy i Høvåg, i Lillesand.
Utløpsfristen for innsendelse av merknader er: 24.04.2026

-
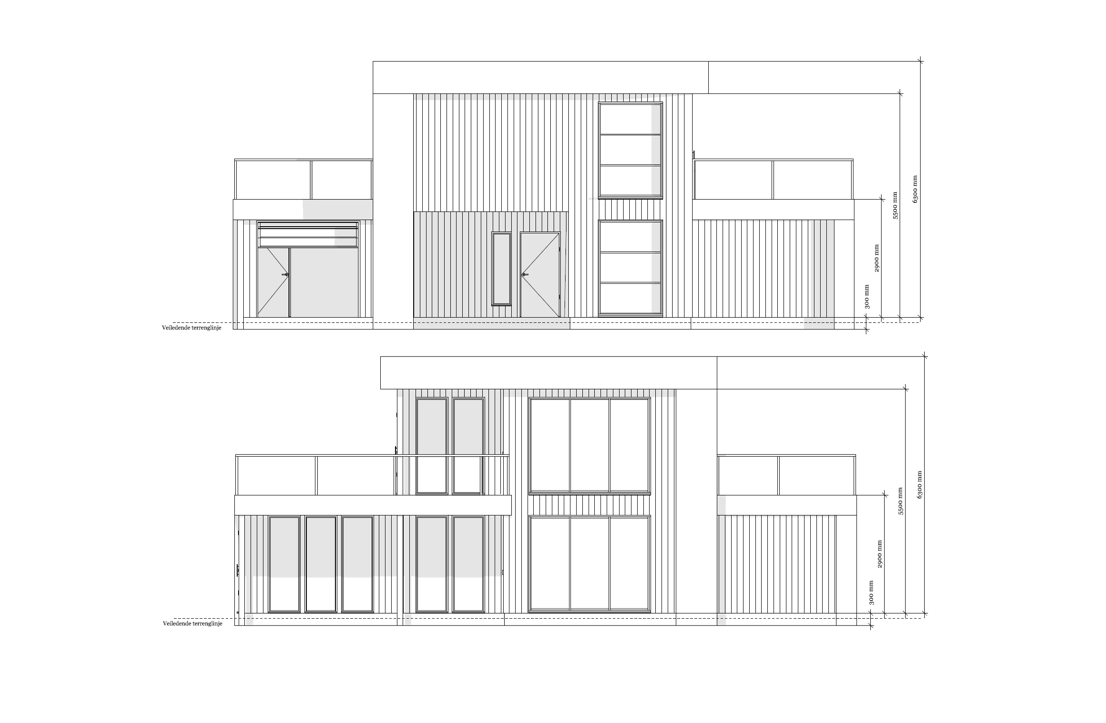
Nabovarsel - Kilenesheia 15, 4643, SØGNE, KRISTIANSAND
Det varsles med dette om søknad om oppføring av enebolig med tilhørende uteoppholdsarealer, samt etablering av støttemur på eiendommen gnr. 412 bnr. 248, Kilenesheia 15.
Utløpsfristen for innsendelse av merknader er: 24.04.2026
Nabovarsel
Dispensasjon
Situasjonsplan
-
Nabovarsel - Ørnefjell 4, 4790 LILLESAND
Det søkes om etablering av ny vei på eiendommen 18/175, samt grensejustering mellom eiendommene 18/175 og 18/261 i Lillesand kommune.
Utløpsfristen for innsendelse av merknader er: 15.04.2026
Nabovarsel
Situasjonsplan